Доставка ЖБИ по Сарову
и Нижегородской области
Ежедневно 9:00-20:00
Ежедневно 9:00-20:00

«Монолит ЖБИ78»

Саров, Южное шоссе, 26с2

пн-вс 9.00-20.00

Отдел продаж:

+7 (831) 238-94-90

Электронная почта:

info@gbi78.ru

круглосуточно

Прайс-лист:

Железобетонный фундамент Ф-1 дорожных знаков

Цена: 5 265 руб / шт
В наличии 44 шт
Макс. производ-во 200 шт./сутки
Работаем по постоплате
Узнать срок поставки

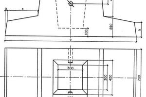
В качестве опоры для стоек временных или постоянных знаков в строительстве автомагистралей и трасс используется фундамент Ф1. Он представляет собой железобетонное изделие, имеющее форму усечённой пирамиды на ступенчатой основе.

Наш фундамент дорожного знака подходит для дорог разного назначения — как общегородских, так и технологических или промышленных. Верхняя часть изделия имеет отверстие для установки стойки с дорожным знаком. Блок фундамента Ф-1 обеспечивает надёжную поддержку дорожных знаков, гарантируя долговечность и устойчивость конструкции.

Характеристики Железобетонный фундамент Ф-1 дорожных знаков:

Вид изделия:

Производитель: Монолит ЖБИ78
Ширина, мм 700
Длина, мм 1100
Высота, мм 700
Вес, т 0.85
ГОСТ/ТУ 3.503.9-80 вып.1
Маркировка Ф1
Марка бетона B15
Объем, м3 0.35
Морозостойкость F100

Стоимость доставки

Способ доставки Макс. длина груза, м Стоимость доставки по Сарову и ЛО
Машина до 3,5 тн до 30 м3 6 от 2 200 руб
Машина до 5 тн до 30 м3 6 от 3 500 руб
Машина до 10 тн до 50 м3 8 от 6 200 руб
Машина до 20 тн до 80 м3 8 от 9 600 руб
Манипулятор до 5 тн 5 от 4 700 руб
Манипулятор до 10 тн 10 от 8 600 руб
Манипулятор до 20 тн 14 от 16 900 руб
Акция - доставка манипулятором 20 тн 9 500 руб. в районе 30 км от КАД
Сертификаты качества
НАШИ ПРЕИМУЩЕСТВА
Всегда в наличии на складах более 400 единиц товара
Быстрое производство: 4 завода жби в Сарове и Нижегородской области
Скидки юр.лицам на заказ от 200 000 руб.
Недорогая доставка: у нас 5 Scania с манипулятором. Даем цены на доставку ниже рынка!

Фундамент Ф-1: надежная основа для дорожных знаков

Фундамент Ф-1 — это прочное железобетонное изделие, предназначенное для установки дорожных знаков, указателей, светофоров и других конструкций. Он обеспечивает устойчивость и долговечность, что особенно важно для объектов, подверженных ветровым и динамическим нагрузкам. Этот тип фундамента разработан в соответствии с требованиями ГОСТ и СНиП, что гарантирует его эксплуатационную надежность.

Область применения ЖБ фундамента

Фундамент Ф-1 широко применяется в следующих сферах:

  • Установка дорожных знаков и указателей

  • Монтаж светофоров и информационных щитов

  • Фиксация барьерных ограждений

  • Основание для опор освещения

  • Использование в благоустройстве городских и пригородных территорий

Сопутствующие товары

При установке фундамента могут потребоваться:

Где купить фундамент Ф-1?

Приобрести железобетонный фундамент Ф-1 можно у нас, проверенного производителя ЖБИ. Мы предлагаем продукцию, соответствующую ГОСТ, с доставкой и консультацией по выбору.

Закажите фундамент Ф-1 с гарантией качества

У нас вы можете купить железобетонный фундамент Ф1 для ограждения участков, где ведутся дорожные работы, а также парковочных территорий и стоянок. Без посредников — по цене от производителя.

Ассортимент жб изделий завода «Монолит» насчитывает более 10000 наименований, в продаже присутствует Железобетонный фундамент Ф-1 дорожных знаков с типовыми размерами мм. Регламентирующим нормативом для продукции этого вида является ГОСТ, в соответствии с которым изделие обладает массой в кг. Продукция всегда есть в наличии, цены указаны без учёта доставки. Актуальную стоимость Железобетонный фундамент Ф-1 дорожных знаков вы можете запросить у менеджера компании по телефону +7 (812) 309-71-78, отправив заявку с сайта или электронное письмо на адрес monolit@gbi78.ru.


Рекомендуем также:
Собственное производство
Наши объекты

Объект: Западный скоростной диаметр (ЗСД)

Местоположение: Саров

Год строительства: 2016

Описание: Поставка железобетонных балок, плит и элементов опор для строительства западного скоростного диаметра. Продукция использовалась для возведения мостовых сооружений и эстакад.

Объект: Стадион "Газпром Арена"

Местоположение: Саров

Год строительства: 2017

Описание: Поставка железобетонных конструкций для строительства трибун, перегородок и перекрытий стадиона. Продукция использовалась для создания несущих и внутренних конструкций.

Объект: Мост через реку Охта

Местоположение: Саров

Год строительства: 2019

Описание: Поставка железобетонных балок и элементов опор для строительства моста. Продукция использовалась для возведения опор и пролётных строений.

Видеоэкскурсия по заводу Монолит-ЖБИ:

Оплата и доставка

Вы можете оплатить свой заказ тремя способами:

  • Переводом на расчётный счёт в банке
  • Наличными в офисе
  • Картой Visa или MasterCard

Доставка осуществляется по Сарову и Нижегородской области. От габаритов груза и его веса будет зависеть вид транспорта, обычно выбор делается между бортовыми автомобилями, грузовиком с кузовом 6 метров или шаландой длиной 12 м. По желанию заказчика возможна аренда манипулятора.

Схема работы с нами
1
Заявка с сайта или по телефону

Заявка с сайта
или по телефону

2
Консультация с менеджером

Консультация
с менеджером

3
Согласование сроков и стоимости

Согласование
сроков и стоимости

4
Поставка ЖБИ

Поставка ЖБИ

5
Оплата

Оплата

Наши преимущества
Опытные квалифицированные
			сотрудники

Опытные квалифицированные сотрудники

Продукция соответствует ГОСТ

Продукция соответствует ГОСТ

Ассортимент из более 10.000 изделий

Ассортимент из
более 10.000 изделий

Полный пакет документов

Полный пакет документов

Быстрая доставка по Сарову и Нижегородской области

Быстрая доставка
по Сарову и Нижегородской области

Оставить отзыв
Наш офис

Нет времени искать нужный товар?
Получите консультацию по телефону!

Видеообращение генерального директора
Наши клиенты
ЦДС
ЛенСтройТрест
ОтделСтрой
ПИК
РосСтройИнвест
SetlCity

Наши партнеры
ЕвроЦементГрупп
БалтЩебень
Петросталь

Расположение офиса: